DOMEK W TRAKCIE REALIZACJI
Dom typu: Poziomka 3 konstr 87,5 m2
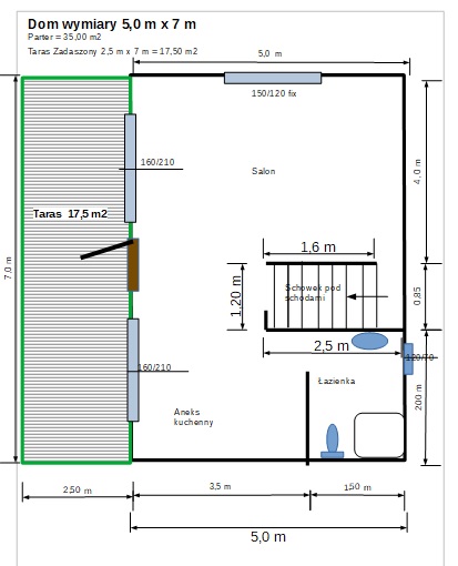
Wysokść w kalenicy 5,0 m
Wysokość ściany bocznej 2,40 m
Pow. zab. 70 m2
Taras zadaszona 17,5 m2
Wyposażenie standardowe zawiera:
1 Cała konstrukcja domu –suszona, heblowana czterostronnie
2 Okładzina drewniana elewacji 28 mm gruba( pióro- wpust)
3 Podłoga drewniane 28 mm gruba na legarach
4 Pełne deskowanie dachu boazeria dachowa czterostronnie strugana
5 Pokrycie dachu 1 x papa wierzchniego krycia , podbitka
6 Podwaliny przyziemia impregnowane
7 Papa podkładowa pod podwaliny
8 Impregnacja elewacji zewnętrznej : ściany + podbitki - kolor …....
9 Taras zadaszony
10Podłoga tarasu kolor ….........
11 Schowek pod schodami
12Ścianki działowe wewnętrzne parter ( pojedyńcza)
14 Wiatrówki, listwy wykończeniowe, model proste
15Stolarka okienna PCV lupkowo-szary/ białe 2 x160/210, 2x75/190.+1 szt 70/120+1 szt 150/120
16 Drzwi zewnętrzne drewniane + klamka+ wkładka 1 szt.
17 Klatka schodowa na poddasze jednobiegowa
Prace dodatkowe :
1 Podłoga -ocieplenie
10 cm wełna , folia paroizolacyjna, OSB
2 Dach ocieplenie
Folia paro przepuszczalna (zamiast papy) , folia zastepująca 20 cm wełny
łaty, folia paroprzepuszczalna, blachodachówka kolor….......................
blacha nad tarasem bez ocieplenia
3 Ocieplenie ścian : folia wiatroizolacyjna
10 cm wełna ,paroizolacja , deska boazeryjna , płyta gipsowa - łazienka


Szanowni Państwo
Spotkania prosimy ustalać telefonicznie.
DREV-IMED
Biuro obsługa klienta:
43-300 Bielsko-Biała
ul. Krakowska 532
tel. +48 509-216-542
Ewelina Maślanka
tel. +48 509-216-542
biuro@drevimed.pl
drevimed1.ewelina@gmail.com
Godziny otwarcia:
Pn - Pt : od 10:00 do 16:00
Sobota : od 10:00 do 13:00
Niedziela: Nieczynne
Ekspozycja nr 1:
ul. Krakowska 532, Bielsko-Biała
tel. +48 509-216-542
Ekspozycja nr 2:
Szanowni Państwo
Oglądanie ekspozycji DREV-IMED jest możliwe po wcześniejszym umówieniu telefonicznym. Serdecznie zapraszamy do zapisywania się dzwoniąc pod nr telefonów lub wyślij SMS w treści wpisując " Ekspozycja TAK" , a skontaktujemy się Tel kom . Orange 509 216 542










